O nás
Projekty
Stavby
Náš dům
Projekty
/
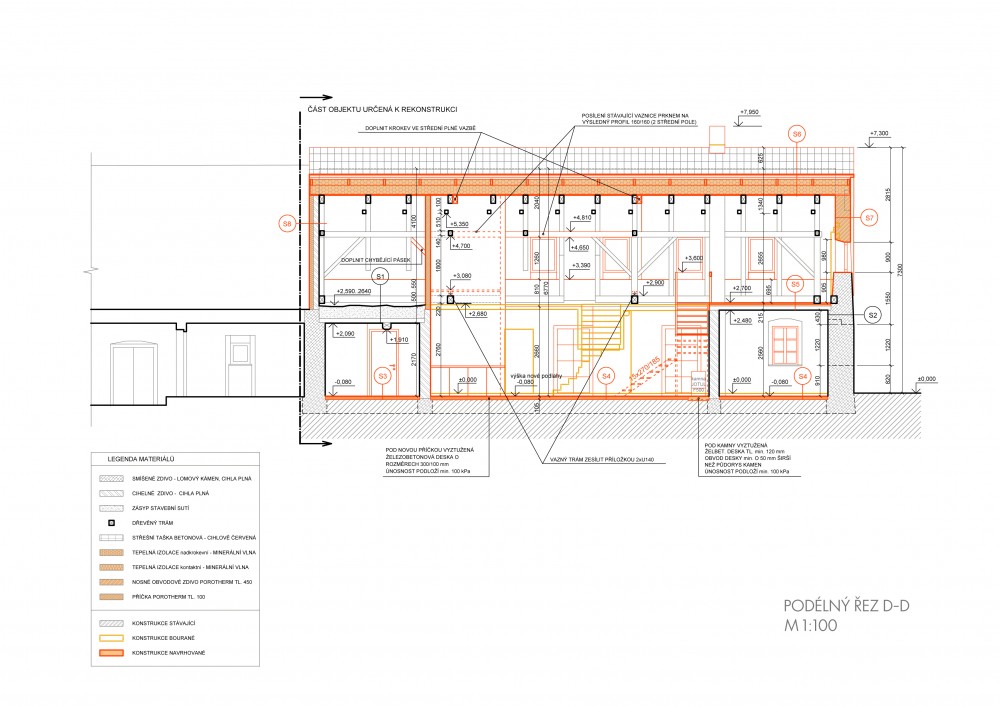
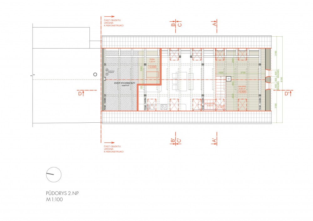
Rekonstrukce RD Habří